1 過熱水蒸気式半炭化(トレファクション)装置の特徴
独自技術(特許取得)の均一で良質なトレファクション生産が可能です。
弊社の半炭化プラントは、均一で良質な半炭化製品を連続的に生産するために、独自に開発した「ツインシャフトスクリュードライバー方式(特許取得)」と「高効率過熱水蒸気噴射装置(特許取得)」を採用しています。
この技術により、最大5トン/時の処理量を実現しました。

2 従来型と過熱水蒸気型装置との比較
従来型(ロータリーキルン内燃方式、外熱方式)に対する過熱水蒸気式の優位性は以下の通りです。
| 高効率な熱伝導処理 |
| 温度、処理速度のコントロールが可能 |
| 製造品の炭化進行度、均一化調整が可能 |
| 無酸素、常圧処理で耐久性、安全性が高く、爆発の危険が無い |
| 還流ガスの循環利用で熱効率が良い |
| 処理時にタール分が発生せず、トラブルが少ない |
| 熱量ベースでホワイトペレットと同等価格を目指す製造原価 |
| 大型商業事業化では、イニシャル、ランニングのコストダウンが可能 |

3 過熱蒸気式トレファクション装置のフロー

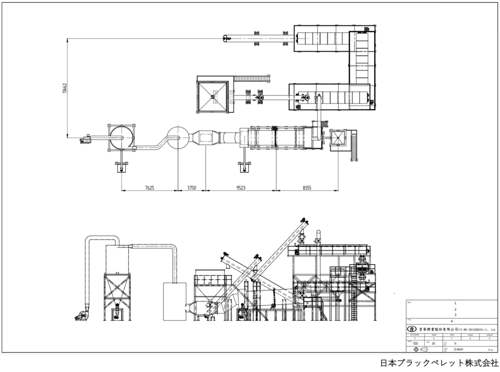
4 半炭化・高炭化装置設置イメージ(最大投入量100t /D、コの字設置タイプ)


5 安全な運用管理
プラントを安全に運用するために装置内部のセンサーから随時情報を取得し、管理モニターに表示することで、いち早く装置内の異常を発見し、安全対策を執ることができます。
また、各センサーからの情報は、サーバーに集積され、IOT・AI技術の活用による遠隔地での管理・分析ができます。

6 保有特許(パテントスコア)
